2026年1月29日の『よーいドン!』“あいLOVE 週末田舎暮らし”は『京都・美山町』。古民家SP!囲炉裏&茶室付き物件紹介された物件はこちら!
「京都・美山町」で田舎暮らし
今日「週末田舎暮らし」の物件を紹介するのは京都・美山町。

(出典:https://www.ktv.jp/yo-idon/)
南丹市にある美山町は京都府のほぼ中央に位置し、面積の96%が森林におおわれています。大阪市内からは車でおよそ2時間でどこか懐かしい日本の原風景に触れることができます。四季折々の顔を持つ美山は今、移住先として人気。
人口:3368人
世帯数:1710世帯
(2025年12月末日現在)
特産品:鮎・美山牛乳・美し米
“ととのう”デッキ月!フルリフォーム古民家
築100年以上!フルリフォーム古民家
物件があるのは京都府美山町野添、美山かやぶきの里まで車で約10分、道の駅「美山ふれあい広場」までは車で約2分。観光でドライブやツーリングで訪れる方が非常に多い場所。比較的周辺に家が少なく、のどかな田舎暮らしを楽しめる場所。
古民家の屋根は鋼板ぶき。もともとの茅葺屋根に金属製の板を覆う工法で、かやぶき屋根の葺き替えは不要。

家の前には山々の景色が見渡せる展望デッキが。中央には桜の木があり、お花見もできます♪

ちなみにこちらの物件の敷地面積は全部で約370坪。家庭菜園やドッグランにできるスペースもあります。
玄関は土間玄関。もともとあった古い建具もリメイクして使っています。

リビングダイニングキッチンは26帖。もともとは土間でおくどさんがあったような場所はシステムキッチンにリフォーム。

天井には立派な梁が。さらに全体が網代天井になっています。網代天井とおしゃれな竹細工の照明も見事にマッチ。さらに欄間にはユニークな形状や木目を持つ奇怪木(きかいぼく)を使い、古民家の雰囲気を生かしながら、デザイン性のあるリフォームとなっています。

さらにリビングの脇には押入れをベンチにリメイクしたくつろぎスペースも。
水回りへの扉はもともとあった扉のガラスをアレンジしてはめこみ直し、オシャレな扉にリメイク。

水回りは集約されていて、全て新品未使用。大きな窓もあり通気性もばっちり。しかも1つにまとまっているので、使い勝手もよさそう。
そして、リビングの他に3つの部屋が。和室×2間(計12帖)は琉球畳になっています。さらに約3帖の板間も。趣味のスペースにするのも◎。

間取りは全部で3LDK。シンプルで使いやすい平屋の古民家となっています。
そして、こちらの物件の田舎暮らしポイントは、家の隣にある自慢のスペース!

[のんびり田舎暮らしポイント]
サウナと水風呂 “ととのう”デッキ付き
フィンランド製のバレルサウナと水風呂が!
フィンランド発祥の樽(バレル)型をした木製のサウナ。熱が均一に循環しやすい。
(画像出典:https://www.country-life.co.jp/d26000600122020000001202)
フルリフォーム
花見ができる展望デッキ
おしゃれにリメイク
サウナ
水風呂
築年月:築100年以上
価格:2,880万円(税込)
土地面積:1218.99㎡ (368.74坪)
建物面積:102.83㎡ (31.1坪)
間取り:2LDK
問合せ先:カントリーライフ
電話番号:075-582-9822
*情報は記事作成時点のもので、現在の情報と異なる場合があります。
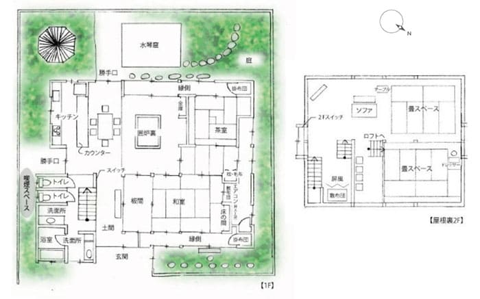
囲炉裏に茶室!屋根裏部屋までついたかやぶき古民家
かなり希少!本格かやぶき古民家
美山の中心部にあり、南丹市役所 美山支所まで車で約2分、近くにはスーパーや郵便局、小中学校も。
物件は登録有形文化財に登録。建物の保存・活用に必要な修理費用の一部が補助されることもあるんだそう。
歴史的・芸術的価値から登録されている建造物

こちらの物件は現在は民泊として使われています。
玄関は土間玄関。キッチンまで土間が続いています。キッチンは広々としたシステムキッチン。

浴室やトイレも使いやすくて清潔。しかもトイレは2か所あり、1つは靴を履いたままでも使うことができます。もしお店にするなら、従業員用とお客さん用に分けるのもいいですね。
大人数で囲める本格囲炉裏部屋(約10帖)も。

囲炉裏の隣いは、雰囲気のいい和室(10帖)が。縁側から見える庭もステキ!

そして、本格的な茶室(4.5帖)も。
さらには蔵もあり、しかも中には水琴窟が。
地中の水がめに落ちる水滴の音色を楽しむ装置。日本庭園の装飾のひとつで、富裕層の粋な遊び。

そしてこちらの物件の田舎暮らしポイントは、階段タンスをのぼった先にある屋根裏部屋。
[のんびり田舎暮らしポイント]
趣味が楽しめる屋根裏部屋

(画像出典:https://koutoku2018.co.jp/bu2022/20251030/bu_20251030.html)
登録有形文化財
本格かやぶき古民家
大きな囲炉裏
屋根裏部屋
築年月:不詳(築100年以上)
価格:7000万円(税込)
土地面積:756.56m²(約228.85坪)
建物面積:延べ:162.28m²(約49.08坪)1階:162.28m²
間取り:6LDK
問合せ先:光徳
電話番号:075-200-3893
*情報は記事作成時点のもので、現在の情報と異なる場合があります。
その他紹介された「京都・美山町」エリアの物件


*本記事に掲載されている情報は記事作成時点のもので、現在の情報と異なる場合があります
『あいLOVE 週末田舎暮らし』その他の記事はこちら↓
▼関西テレビ「よーいドン!」
毎週月~金 9時50分~11時15分
出演:円広志、谷元星奈(関西テレビアナウンサー)月亭八方、月亭八光、酒井藍 他


